00件
最近見た物件
00件
検討リスト
イーアールホームズ > 物件一覧 > JM167 > 物件詳細
新築 倉庫+事務所物件。阪神高速神戸線や湾岸線のインターチェンジも近い立地です。


※1. 仲介手数料は仮の価格となりますので、実際の価格に関してはお気軽にお問い合わせ下さい。
※2. 1か月を30日として計算しています。

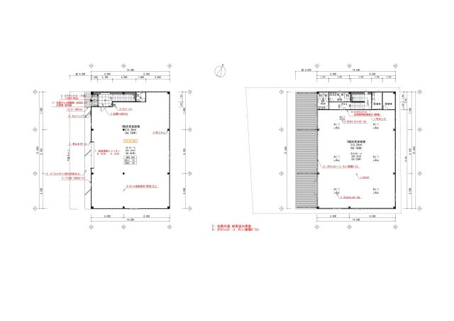
| 所在地 | 兵庫県神戸市東灘区魚崎南町3丁目 | ||
|---|---|---|---|
| 交通 | |||
| 坪数(面積) | 189.48坪(626.40㎡) | ||
| 賃料/坪単価 | 302.5万円/1.6万円 | 管理費・共益費 | - |
| 敷金/礼金/保証金 | 0万円/0万円/2,750万円 | 償却/敷引 | -/907.5万円 |
| 更新料 | - | 権利金/雑費 | -/- |
| 造作譲渡金 | - | 駐車場/月額料金 | 有/0円 |
| 保険加入/料金 | 有/- | 保険名/保険期間 | -/- |
| 保証人代行義務 | - | 保証会社 | - |
| 保証会社詳細 | - | 向き | - |
| 築年月(築年数) | 2026年 5月 (予定) | 契約期間 | 2年 |
| 種別/構造 | 店舗事務所/軽量気泡コンクリート | 用途地域 | 準工業 |
| 部屋/所在階/階建 | -/1-2階/2階建 | 総戸数 | - |
| 現況/引渡時期 | 未完成/2026年06月上旬 | 取引態様 | 一般媒介 |
| 物件番号 | 99874517 | 取引条件の有効期限 | 2026年03月17日 |
| 設備条件 |
|
||
| 備考 |
1階:電動シャッター、フォークリフト用電源有。 2階:個別空調、OAフロア、男女トイレ別。- |
||
| 取扱会社 |
|
||
| QRコード |
このQRコードを読み取ることで、スマホでも物件情報を確認できます。 |
||
※地図上に表示される物件の位置は付近住所に所在することを表すものであり、実際の物件所在地とは異なる場合がございます。
路線から探す